Compare properties

Compare

No properties found to compare.

Ca n’Oliva

Icono Superfície Superfície: 60 m2
Icono Habitaciones Habitaciones: 3
Icono Baño Baños: 1
Venta
Property ID: SM640
¿Cómo es?
Property bedroom icon Habitaciones: 3
Property area size icon Hab. Doble: 1
Property distance from center icon Hab. Individual: 2
Property bathroom icon Baños: 1
Property size icon Superfície: 60 m2
Property floor icon Suelo: Parquet
Property total floors icon Estado: Para entrar a vivir
Property year built icon Construcción: 1963
Property heating icon Calefacción:
Property additional space icon Lavadero: Si, integrada a cocina
Property garages size icon Balcón/Terraza: -
Property ceiling height icon Ascensor: Si, escaleras previas
Property parking icon Exterior/Interior: Exterior
Property garages icon Plaza de Parking: -
Property accommodation icon Muebles:
Certificado Energético
Certificado Icon 261
Certificado Icon 49
Características
Aire Acondicionado
Armario Empotrado
Aseo
Balcón
Calefacción
Exterior
Interior
Lavadora
Nevera
Plato de ducha
Reformado
Terraza/Balcón
Trastero
TV
Ventanas de aluminio
Ventanas de Madera
Ubicación
Dirección: Carrer de Ca n'Oliva, Barcelona
Código Postal: 08020
Descripción

En calle Ca n’Oliva, por debajo de Rambla Guipúscoa, encontramos esta vivienda, situada en una zona lejos del tráfico denso de la ciudad. Un piso con una distribución clara, bien proporcionada y con margen para adaptarlo a tu manera de vivir.

Cuenta con 60 m² construidos según Catastro y una orientación Noreste que aporta luz natural durante las primeras horas del día.

Distribución

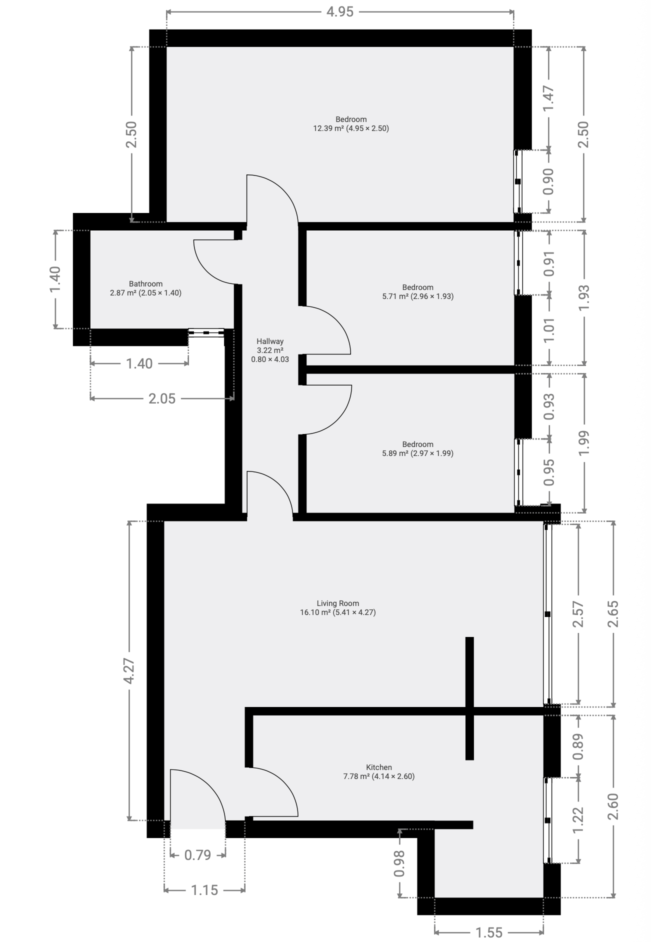
Al acceder a la vivienda, un recibidor organiza el espacio. Desde aquí se entra a la cocina independiente, que dispone de salida a zona de galería. A continuación de la entrada entramos al salón-comedor cuadrado, con espacio adicional donde se ubicaba el balcón (ahora integrado al salón).

La zona de descanso se organiza a través de un pasillo que lleva a tres habitaciones: una doble y dos individuales. Todas son exteriores excepto el baño, lo que hace que la vivienda sea luminosa y ventilada. Una de las individuales está orientada al este y la otra al norte, con espacio pensado para armario empotrado.

El piso dispone de ventanas de aluminio y suelos de parquet.

Se encuentra en una finca de 1963 con ascensor (con escaleras previas en portería)

 

La zona

Ubicado en el barrio de La Verneda i la Pau. En las inmediaciones tienes lo esencial: supermercados, panaderías, farmacia, el CAP La Pau, y otros pequeños comercios de proximidad.

En cuanto a transporte, la conexión es muy cómoda gracias a las líneas de metro L2 y L4 (La Pau), L4 (Besòs), el tranvía en Gran Via y autobuses como la H10 y H12, que facilitan el acceso al centro y a otros puntos de la ciudad.

Características principales

  • 60 m² construidos (según Catastro)
  • Piso exterior
  • 3 habitaciones Exteriores (1 doble y 2 individuales)
  • Cocina independiente con zona galería
  • Salón comedor
  • 1 baño con plato de ducha
  • Suelos de parquet
  • Ventanas de aluminio
  • Finca de 1963
  • Ascensor (con escaleras para acceder)
  • Orientación Noreste (Girona)
  • NO AMUEBLADO

Una vivienda con luz de mañana y una distribución que permite actualizarla y adaptarla a tu estilo.

¿Te encaja? Llámanos y la vemos con calma.

* Gastos e impuestos no incluidos en el precio.

Virtual Tour
Plano
size: rooms: baths:
Medidas aproximadas
Floor plan image
0 Reviews
You don't have permission to register
Me muero por verlo