Compare properties

Compare

No properties found to compare.

Icono Superfície Superfície: 139 m2
Icono Habitaciones Habitaciones: 4
Icono Baño Baños: 4
Venta
Property ID: SM643
¿Cómo es?
Property bedroom icon Habitaciones: 4
Property area size icon Hab. Doble: 3
Property distance from center icon Hab. Individual: 1
Property bathroom icon Baños: 4
Property size icon Superfície: 139 m2
Property floor icon Suelo: Gres porcelánico efecto madera
Property total floors icon Estado: Para entrar a vivir
Property year built icon Construcción: 2022
Property heating icon Calefacción: Aire acondicionado por conductos + Calefacción por aerotermia
Property additional space icon Lavadero: Cuartito Lavadora
Property garages size icon Balcón/Terraza: Terraza + 4 Balcón
Property ceiling height icon Ascensor: No
Property parking icon Exterior/Interior: Exterior
Property garages icon Plaza de Parking: Si (2)
Property accommodation icon Muebles: -
Certificado Energético
Certificado Icon 43
Certificado Icon 7
Características
Aire Acondicionado
Armario Empotrado
Aseo
Balcón
Calefacción
Exterior
Interior
Lavadora
Nevera
Plato de ducha
Reformado
Terraza/Balcón
Trastero
TV
Ventanas de aluminio
Ventanas de Madera
Ubicación
Dirección: Carrer Pau Alsina, Montgat
Código Postal: 08390
Descripción

Un tríplex contemporáneo para vivir cerca del mar en Montgat + 2 Plazas de Parking en la misma finca

En Montgat, en la tranquila calle Pau Alsina, encontramos este tríplex en una finca moderna de 2022. Una vivienda amplia, luminosa y pensada para quienes buscan espacio, comodidad y la posibilidad de disfrutar del exterior a pocos minutos del mar.

La ubicación es especialmente agradable: en un entorno residencial tranquilo, cerca del centro del pueblo y muy próximo a la Platja de Montgat, la estación de tren Estació de Montgat y el Ajuntament de Montgat, lo que permite moverse cómodamente tanto a pie hasta la estación de Tren.

Distribución de la vivienda

La vivienda se organiza en TRES PLANTAS, creando espacios diferenciados entre zona de día y zona de descanso.

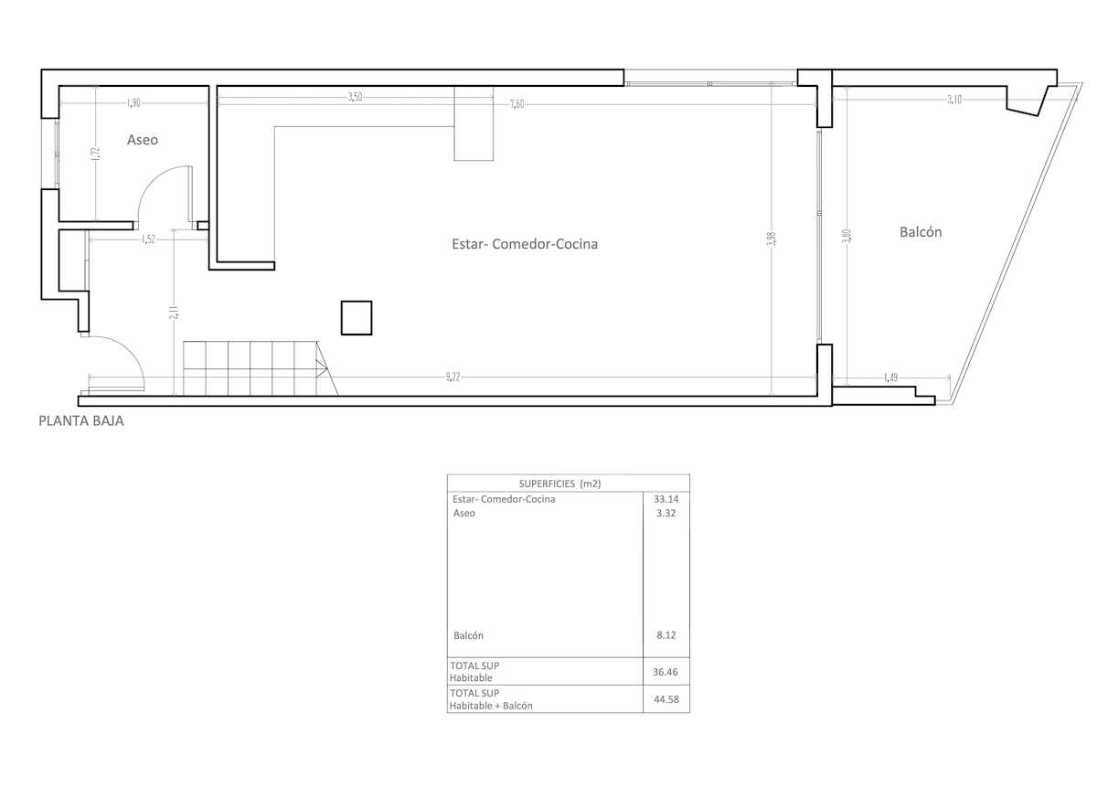
Planta principal

Al entrar encontramos el recibidor con la escalera que conecta con el resto de plantas.
A la izquierda se sitúa un primer baño, preparado para instalar plato de ducha si se desea.

A continuación se abre la cocina integrada al salón-comedor, con espacio pensado para una nevera americana y una distribución cómoda para el día a día. El salón-comedor, amplio y luminoso, conecta con un balcón orientado al oeste, donde entra el sol de tarde.

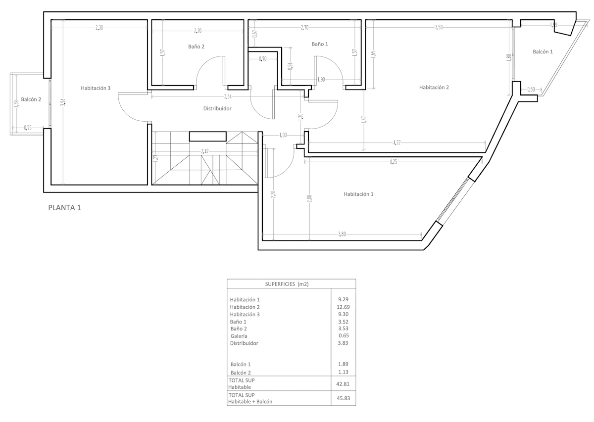
Segunda planta

Aquí se ubica la zona principal de descanso, con tres habitaciones:

  • Una habitación doble en suite, con baño con plato de ducha y salida a un pequeño balcón orientado al oeste.
  • Una habitación mediana, orientada al este, y salida a un balcón.
  • Una habitación individual, también orientada al oeste.

En esta planta encontramos además otro baño completo con plato de ducha. También hay un cuartito independiente donde se ubican actualmente la lavadora y la secadora, manteniendo la zona de día ordenada.

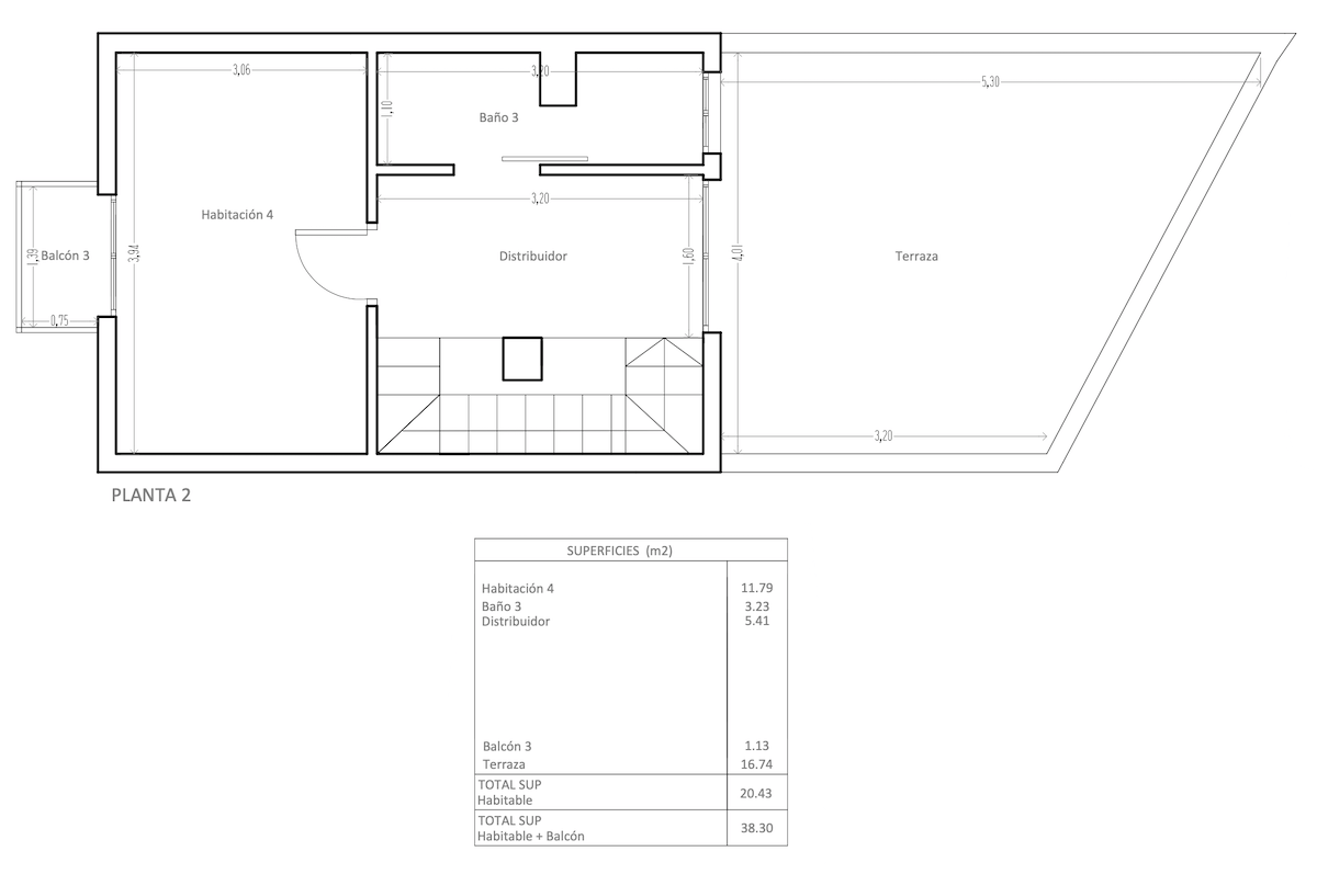
Tercera planta

La última planta ofrece un espacio muy especial:

  • Una segunda habitación doble
  • Un baño con plato de ducha
  • Y una terraza privada, perfecta para disfrutar del aire libre, comidas al sol o tardes de barbacoa.

 

Confort y acabados

La vivienda ha sido pensada para ofrecer comodidad y eficiencia en el día a día. Cuenta con calefacción mediante aerotermia y aire acondicionado por conductos, un sistema moderno que aporta bienestar durante todo el año.

Las ventanas con doble acristalamiento Climalit ayudan a mantener el confort térmico y acústico, mientras que las persianas eléctricas facilitan el uso diario de la vivienda.

En cuanto a los acabados, destacan los suelos de gres porcelánico efecto madera, que aportan calidez visual y resistencia. La vivienda se entrega sin amueblar, lo que permite adaptarla fácilmente al estilo de cada propietario.

La escalera interior, de estructura abierta con peldaños de madera, aporta ligereza visual y deja pasar la luz entre plantas, evitando la sensación de bloque macizo y contribuyendo a que el espacio se perciba más amplio y conectado.

Además, su doble orientación este-oeste favorece la ventilación natural y permite disfrutar tanto del sol de mañana como del de tarde.

El precio incluye dos plazas de parking en la misma finca, de aproximadamente 10 m² cada una, un extra muy práctico para el día a día.

 

Características principales

  • Tríplex
  • 1 terraza + 3 balcones (entre todos son unso 26,76 m2)
  • 4 habitaciones exteriores (2 dobles, 1 mediana y 1 individual)
  • Cocina abierta al salón comedor
  • 4 baños (3 con plato de ducha y 1 preparado para instalarlo)
  • Cuartito de lavandería
  • Calefacción por aerotermia
  • Aire acondicionado por conductos
  • Ventanas Climalit
  • Persianas eléctricas
  • Suelos de Gres Porcelánico efecto madera
  • Vivienda no amueblada
  • Orientación al Oste, pero también al Este
  • 2 plazas de parking en la misma finca de 10 m2 cada una
  • Finca construida en 2022
  • Estado: Para entrar a vivir
  • Cédula de habitabilidad: CHB00048923011
  • Certificado de eficiencia energética: 73DX33XF4, Consumo de Energia C 43 y Emisiones B 7

Un hogar moderno, con espacio para la familia, zonas exteriores y la tranquilidad de vivir cerca del mar y bien conectado con Barcelona.

* Gastos e impuestos no incluidos en el precio. A título orientativo, el Impuesto de Transmisiones Patrimoniales (ITP) en Cataluña asciende a 72.000 €, calculado al tipo general del 11% para viviendas de mas de 600.000€. Este importe puede variar en función de las circunstancias personales de la parte compradora. Asimismo, los gastos de formalización son aproximadamente: Notaría 1.500 €, Registro de la Propiedad 1.500 € (según arancel) y Gestoría 500 € + IVA.

Núm. Registre AICAT: 9895 · Núm. API: A10075

Virtual Tour
Plano
PLANTA BAJA size: rooms: baths:
Floor plan image
PLANTA 01 size: rooms: baths:
Floor plan image
PLANTA 02 size: rooms: baths:
Floor plan image
Property Tags
0 Reviews
You don't have permission to register
Me muero por verlo